1001/1 William Street Melbourne VIC

Two Units in One – Flexible Family Living Options

2
2
1

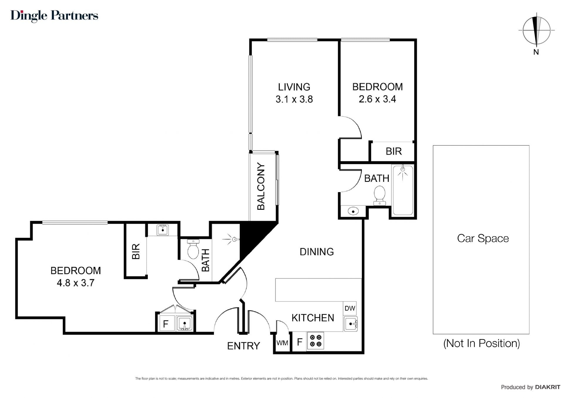
The flexible design configuration of this generous 2 separate unit layout allows for multiple lifestyle options, combining the flexibility of a large one bedroom apartment together with a separate adjoining studio apartment, both on the one title. An ideal opportunity for personal use, the extended family, a student requiring personal space, combine both into a spacious single apartment or investment potential. Additional features include a secure carparking space, heating and cooling, the inclusion of furniture, resident heated indoor pool, front reception and the convenience of an on-site bar & restaurant. Positioned on level 10 of the Clarion Suites Gateway, Showcasing city and Yarra River views through to Flinders Street Station, the MCG and beyond

Perfectly positioned along Melbourne’s picturesque riverfront, this sought-after address places you moments from acclaimed restaurants, chic cafés, boutique bars, and convenient transport links, with the city’s financial and legal precincts just a short stroll away.

$680,000 – $720,000

Property Type

Apartment

Overview

Type
Apartment
Contract
For Sale
Building Size
97 sqm
Garage
1
Agentpoint Maps Loading…