3/157 Deakin Street ESSENDON VIC

Spacious Townhouse Living – Perfectly Positioned

3
2
1

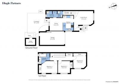
Wonderfully positioned in a tightly held Essendon pocket, this boutique three bedroom townhouse forms part of an exclusive development of just four residences.

Offering a combination of privacy, abundant natural light, and contemporary flair, this well maintained townhouse delivers spacious living with a seamless indoor-outdoor connection.

Step inside to a living zone that flows through to the open plan kitchen, dining, which spills onto a private entertainer’s rear yard. The sleek kitchen impresses with a breakfast bench, stainless steel appliances.

Downstairs also features a powder room, a full-size laundry, and ample storage areas, internal access to a single garage. Upstairs, three robed bedrooms and a luxurious bathroom with additional corridor linen closet/storage and bath. Enhanced by ducted heating/cooling, this home combines comfort, security, and space.

Additionally included is a sizeable rear garden shed and easy access secure lock up garage and a downstairs powder room/toilet with additional understairs storage.

Moments from Buckley Park, Keilor Road shopping, transport, and leading schools including St John Bosco‘s, Buckley Park College (zoned), St Bernard’s, and Ave Maria College.

CONTACT AGENT

Property Type

Townhouse

Overview

Type
Townhouse
Contract
For Sale
Garage
1
Agentpoint Maps Loading…

Domenic Zanellini

Sales Consultant – Licensed Estate Agent